logo Atelier BNK
menu
logo Luuug

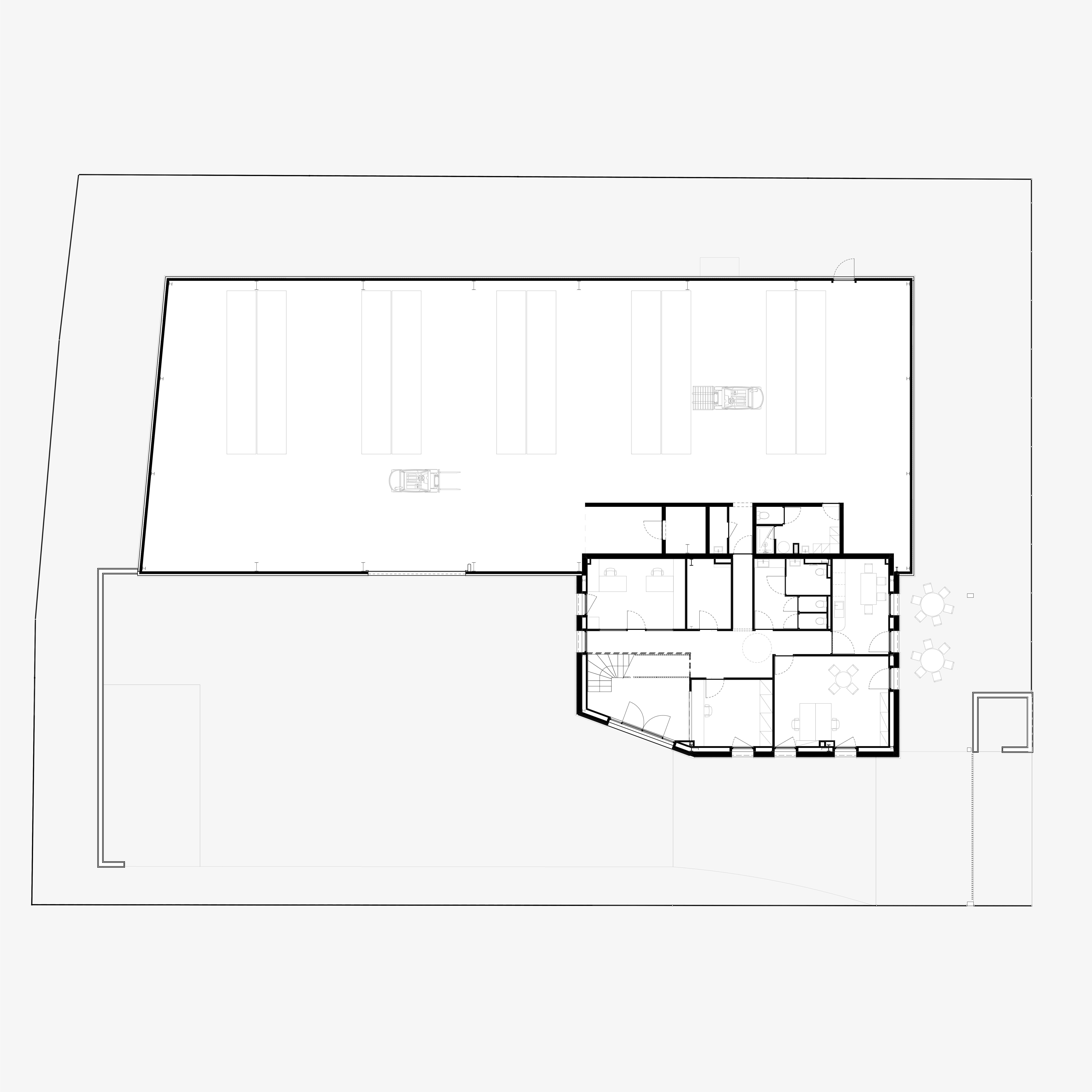
BUREAUX ET ATELIER

Création d'un ensemble de bureaux et d'atelier pour une entreprise Lyonnaise. 

200m2 de bureaux et 600m2 d'atelier-stockage sur un terrain de 1900m2

Chantier en cours...

Année 2022

Localisation VAULX MILIEU

Surface 800 m2

Budget NC

Délai d'étude 2022-2023

Délai travaux 2023-2024

Maitrise d'oeuvre Atelier BnK - mission complète

Entreprise

Retour